ChatsApp

Descripción

- INMOBILIARIA MONYMAR -

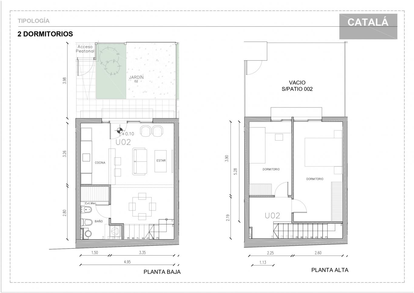
CATALÁ Y ARRIETA... A PASOS DE LUIS ALBERTO DE HERRERA... PRÓXIMO A NUEVOCENTRO SHOPPING... SIN GASTOS COMUNES!!! DUPLEX. JARDIN AL FRENTE CON REJAS PERIMETRALES. PLANTA BAJA: Living comedor, cocina integrada con placares aéreos y bajo mesada. PLANTA ALTA: 2 DORMITORIOS, 1 baño completo. COCHERA PARA UN AUTO. Entrada peatonal. Conexión para lavarropas. Cuenta con rejas, campana en la cocina y aire acondicionado.

002 - 003) PRECIO DE VENTA: 140.000

LE QUEDAN 7 AÑOS DE LOS BENEFICIOS DE SER UN UN BIEN AMPARADO POR LA LEY 18795 DE LA AGENCIA NACIONAL DE VIVIENDA Y CON TODOS LOS BENEFICIOS PARA LOS COMPRADORES OTORGADOS POR DICHA LEY :
1) Exoneración del IVA del precio de compra;
2) Exoneración del pago de ITP (2% sobre valor de catastro),
3) Exoneración del impuesto al patrimonio por 10 años,
4) Exoneración del impuesto a la renta (IRPF O IRAE) por 10 años.

METRAJE: 60m área propia + 25m jardín = 85m Total.

CONSULTE POR OTRAS UNIDADES DISPONIBLES!!!

(CA 11384)

Características de la propiedad

  • Habitaciones2 Habitaciones
  • BañosBaños: 1
  • SuperficieSuperficie: 85,00 m²
  • Superficie ConstruidaSuperficie Construida: 60,00 m²
  • Superficie BalconesSuperficie Balcones: 25m²
  • GarageCochera:
  • Propiedad HorizontalPropiedad Horizontal
  • PlantasPlantas: 2
  • Año de ConstrucciónAño de Construcción: 2023
  • JardínJardín
  • Estado: - Impecable
  • Vivienda Social: Si
  • Jardín: Si
  • Plantas: 2
  • Propiedad horizontal: Si
  • Año de construcción: 2023
  • Tipo garage: Cochera
  • Superficie terrazas: 25 m2
  • Superficie construida: 60 m2

Contactate con nosotros

captcha

¿Quiénes somos?

Somos una empresa familiar en constante crecimiento y siempre apostando a la excelencia en la prestación de servicios inmobiliarios, no solo en la compraventa y alquiler de casas y apartamentos, sino que nos hemos especializado y somos líderes en venta y alquiler de locales y terrenos para industria, logística o depósito.